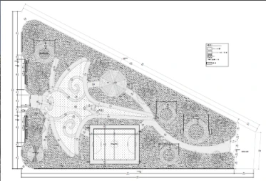
ކަލައިދޫ ކައުންސިލުން ތަރައްޤީކުރަމުން ގެންދާ ކުޑަކުދިންގެ ޕާކުގެ މަސައްކަތްތައް
ޕާކް
ނަންބަރު :
(AGR)456-ESMSC/PRIV/2025/3
ކުރިއަށް ދާ ހިސާބު70%
އަގު596,029.7

ހަވާލުކުރެވުނު ފަރާތްމޮޑާރން އިންވެސްޓްމެންޓް މޯލްޑިވްސް
ހަވާލުކުރެވުނު ތާރީޚް28 އޮގަސްޓު 2025
ނިމޭނެ ކަމަށް ލަފާކުރެވެނީ15 ޑިސެންބަރު 2025